ヴェルト日本橋Ⅲ
短時間でごみ出しを終えられるように、敷地内にゴミ置き場を設置しています。地上13階建てのイチオシの物件です。こちらはマンションタイプになります。こちらは3駅以上利用可物件なので電車での移動の幅も広がります。中央区に詳しい当社では日比谷線小伝馬町周辺の賃貸も取り扱っています。お問い合わせは03-5296-9335までお気軽にどうぞ。
物件情報
周辺施設
ヴェルト日本橋Ⅲ の物件概要
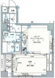
【マンション】| 所在地 | 東京都中央区日本橋大伝馬町13-6 | ||
|---|---|---|---|
| 交通 | |||
| 賃料 | 10.5万円 | 管理費・共益費 | 10,000円 |
| 面積 | 22.40㎡ | 築年月(築年数) | 2003年 8月 ( 築22年 ) |
| 種別/構造 | マンション / 鉄骨鉄筋コンクリート | 階建 | 13階建 |
| 備考 | 駅まで2分と、駅近でアクセスも良好な物件です。造りとデザインに関して、自信をもって情報を提供できるマンションです。駅が3つあるので、用途や行き先によって経路を選べる物件です。地域のゴミ捨て場まで行かずにサッとゴミ出しできるように、共用部にゴミ捨て場があります。不動産について分からない事も、豊富なノウハウを持ったチアエステートスタッフが丁寧に対応致します。まずは03-5296-9335/mail@cheer-e.comからご連絡ください。 | ||
| 取扱会社 |
|
||
※地図上に表示される物件の位置は付近住所に所在することを表すものであり、実際の物件所在地とは異なる場合がございます。
ヴェルト日本橋Ⅲの空室情報











